Продается коммерческая, 64.5 кв.м., 1/2 эт
| Стоимость | 3 600 000 |
|---|---|
| Тип коммерческой | Торговое помещение |
| Площадь, кв.м. | 64.5 |
| Этаж | 1 |
| Этажность | 2 |
| Населенный пункт | Тамбов |
|---|---|
| Район города | Ленинский |
| Улица | Советская Улица |
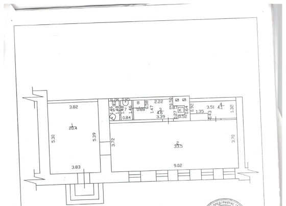
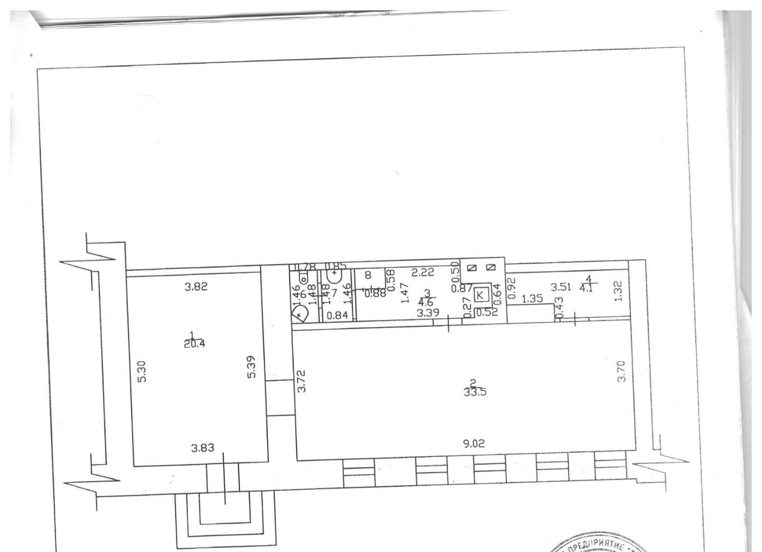
Продаётся нежилое помещение (продуктовый магазин) общей площадью 64,5 м.кв., расположено на первом этаже жилого дома. Помещение включает: два торговых зала площадью 20 м.кв. и 33 м.кв. , 2 вспомогательных помещения площадью 4 и 5 м.кв. и санузел площадью 3 м.кв., высота потолков 2,70 м., индивидуальное отопление. В стоимость входит торговое оборудование (холодильники, витрины, стеллажи, прилавки, кассовые аппараты), отдельный вход, в помещении имеется кондиционер. Помещение оформлено в собственность на физическое лицо, все необходимые экспертизы и заключения имеются и оформлены установленным порядком. Помещение расположено непосредственной близости от центральной улицы Советская, имеет удобный подъезд и парковку для автомобилей.
Остальные подробности по телефону и при осмотре.















